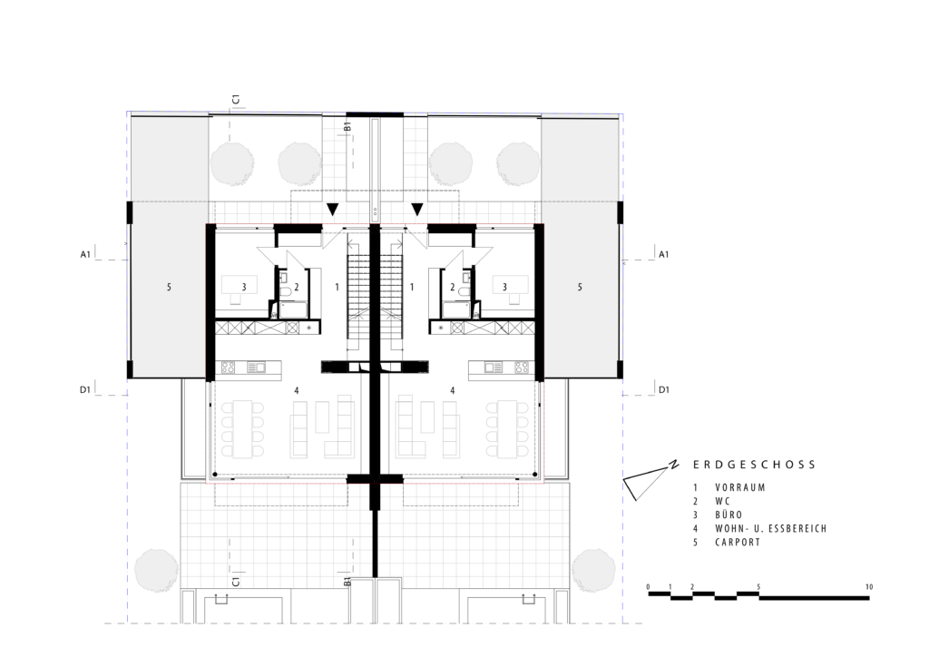
Studie und Entwurf für Doppelhäuser, inkl. Garage und Outdoor-Pool, in Brunn am Gebirge.
Das Raumprogramm pro Haushälfte umfasst einen großzügigen Wohnraum, ein Büro, ein Gästezimmer, zwei Kinderzimmer und ein Masterbedroom mit riesiger Terrasse.













haus B